Sul divano Rico Sofa 3 in tessuto bouclé color Offwhite [Ferm Living, cm 210x81,5x79h € 3.389], cuscini quadrato Riom in velluto Fondant/ Agate [Villa Nova, cm 40x40] e rettangolare in raso lucido con decori Mezzaluna [Dedar], più coperta Lose [Society Limonta, cm 220x240 € 250]. In primo piano, a sinistra, poster Pottery 06 [The Poster Club, cm 30x40 € 49], più vaso Le Torri [Francesca Verardo]. Sulla credenza, vasi Cartoccio [FontanaArte € 650] e Massimo [LatoxLato € 650]. A destra, lampada da terra Big Shadow [Cappellini, cm 160,5h], portavaso in metallo [Hubsch su smallable.com € 172].
Colori tenui dal rosa al grigio passando per il verde, materiali preziosi come ottone, marmo e legno
si combinano tra passato e presente, grazie a elementi d’epoca e a pezzi di design.
In primo piano, sul carrello Duilia in metallo e ripiani in vetro fumé [Kave Home, cm 75x35x68h € 189], caffettiera, zuccheriera e lattiera vintage [MAS]; a parete piatto [Les Ottomans]. Tavolini in ferro battuto a mano Chele bianco e Kofù nero [Antonino Sciortino per Atipico] con vasi in ceramica rosa Le Torri e
I Flessi [Francesca Verardo da € 140]; alzatina Toppu Tray in ceramica [Oyoy Living, ø cm 20x9h € 60] più tazza Still Mug in vetro soffiato [Ferm Living € 25 il set da 2].
Pouf Arkad [Zilio A&C, cm 77x77x45h € 2.476,60] con plaid Single [Society Limonta, cm 120x180 € 125]
e cuffie Beoplay H4 2nd Gen [Bang & Olufsen € 290]; poltrona con cuscini in tessuto di ciniglia Volume Ember Powder [Kirkby Design, cm 140h € 165,50/m]. Sospensione Papillion Perforated [101 Copenhagen, ø cm 98,5 € 779], tavolino vintage [da Vecchio Mio] con tv e portavaso [H&M Home], poster Wondering con cornice [The Poster Club].
Piantana Moonraker [101 Copenhagen € 640], quadro [Christopher Pisk] e forme per guanti [da Vecchio Mio]. A terra, come nel resto della casa, parquet a listoni in rovere nella finitura juta, posato a spina francese [Paolo Colombo Parquet].
Sul top: macine sale e pepe Kiki [Wireworks London], taglieri Mixed Trivet e Mini Trivet in marmo [Espi Design da € 80 cad] e bollitore Plissé nero [Alessi, lt 1 € 79]; sospensione Pearl [101 Copenhagen € 479]. Accanto al forno, scaletta Ladder in legno massello curvato [Gebrüder Thonet, cm 45x154h € 577].
Cucina Bluna grigio fumo [Binova] con top e schienale in grès spessore 12 mm Grande Concrete Look Smoke di [Marazzi] come le piastrelle Mystone Ceppo di Grè color Grey a terra [cm 60x60 da € 51/mq].
Sottopiatti
[ø cm 40 € 180 cad], sottobicchieri [da € 40 cad] e taglieri in marmo [€ 90 cad], tutto di [Espi Design]; brocca e bicchieri Ripple Smoked Grey [Ferm living, € 35 e € 39 il set da 4], piatti
e coppette I Gusci in porcellana di Limoges [Bianco di China], piattino argentato collezione Milano La Cerchia [Waiting for the Bus € 290 il set da 6 piatti concentrici], posate Rock [€ 249 il set da 24] e sottopiatto Kyma [ø cm 31 € 139] di [Sambonet], tovaglioli Tab in 100% lino [Society Limonta, cm 50x50 € 30 cad] e vaso Cartoccio [FontanaArte, cm 30h € 650].
Libreria con montanti in alluminio e ripiani in acciaio Big Wall [Caimi], sul cassettone d’epoca, lampada da tavolo Gatto piccolo [Flos, cm 31h € 395]; sgabelli vintage con seduta rivestita in tessuto Burton [Larsen].
Armadio a muro rivestito con carta da parati Tosca Grey con paesaggio [Le Papiers de Ninon, il pannello di dimensioni standard da cm 240x270 € 215]. Sul soffitto dipinto con idropittura codice colore D5.06.68 [Sikkens], lampade Dioscuri in vetro soffiato [Artemide, ø cm 14 € 142 cad].
Poltroncina rosa Roly Poly [Driade € 490]. Lo studio è stato stravolto perché «è il luogo dove sviluppo le mie idee, uno spazio creativo che, all’occorrenza, serve anche per lavorare da casa e
come stanza per gli ospiti»
Sul tavolo Fronzoni [Cappellini], portaoggetti Toolbox nero [Vitra € 36], vaso [OYOY], calendario Timor [Danese € 124], kokeshi doll Frida [Lucie Kaas € 44] e lampada a olio [AKI]. La mano decorativa sul mobile a serrandina e il pouf rivestito con tessuto [Rubelli] sono di [Vito Nesta]; accanto alla finestra, 4 fotografie Burlesque [Giandomenico Frassi].
Mood vintage: Vanessa l’ha voluto riprendere anche qui con il pouf rosa antico con frange, il mobiletto che lei stessa ha ridipinto e la poltrona bianca di sua madre.
Le ante scorrevoli dell’armadio sono rivestite con la carta da parati Elisir, disponibile su supporto vinilico
e retro in TNT, oppure nel nuovo supporto ecologico 100% riciclabile CWC-ECO [Wall&Decò € 110/mq]. Sul pouf in velluto rosa con frange di [Bloomingville], vassoio in Paglia di Vienna Salon Tray in colore Rust [Normann Copenhagen, ø cm 35 € 87] con tazza [Croff]; pianta di [Verde Idea].
Letto Sommier con box contenitore, rivestito in tessuto Nobil Bond categoria Plus [PerDormire, per rete da cm 180x200 € 824] con copripiumino matrimoniale e 2 cuscini con fodere Rem Verbena in lino da cm 50x50 [€ 460 e € 120] di [Society Limonta] come il plaid Ted Rosa Tea [cm 160x240 € 285]. Sulla boiserie realizzata su misura [Falegnameria Fallacara] e dipinta con smalto colore C8.04.67 [Sikkens], vasi Le Torri e I Flessi [Francesca Verardo], lampada IC Light [Flos € 440]. Orologio [House Doctor], quadro [Christopher Pisk], scultura Cubo [Antonino Sciortino], specchio [Umbra].
Sopra il mobile lavabo realizzato su misura, specchio vintage da [Vecchio Mio]; cassettiera vintage acquistata su [subito.it]. Asciugamani bianchi [Orla Kiely].
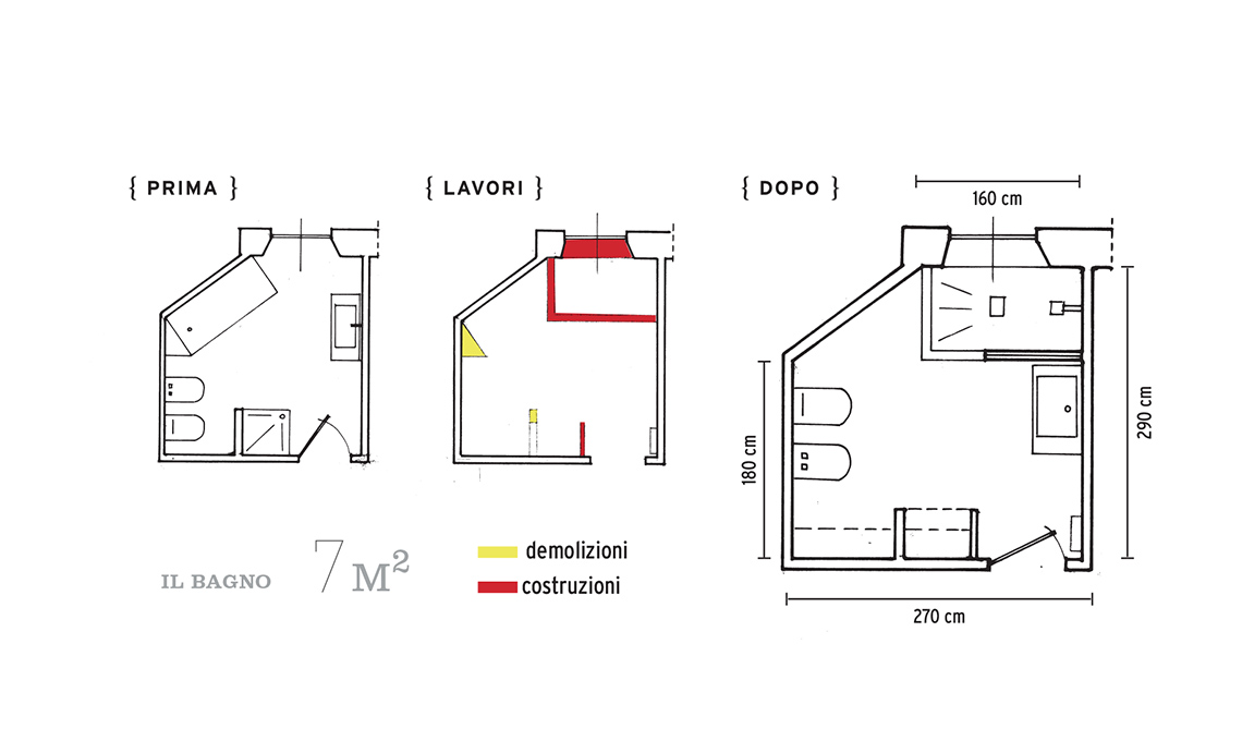
A terra, piastrelle esagonali in grès effetto marmo Allmarble altissimo decoro Geometria [Marazzi, cm 21x18,20 € 51,50/mq], a parete, rivestimento Petra color Sasso steso a mano [Wilson & Morris]. Alla finestra, tenda in tessuto trattato impermeabile e antimuffa confezionata da [I Vigna].
Grazie a due quinte a tutta altezza e profonde 50 cm, dietro la porta lo spazio è stato sfruttato appieno con due nicchie attrezzate con ripiani, che ospitano la zona lavanderia (con lavatrice a profondità ridotta) e un comodo ripostiglio. Per chiuderli ci sono due eleganti tende in lino pesante color antracite [Romo]. Una scelta décor semplice e super pratica!
Rassicuranti tonalità soft e tappezzerie da sogno... Questa volta Vanessa si è cimentata con il restyling della sua nuova casa, facendo convivere dettagli primi '900 e attualissime scelte décor.
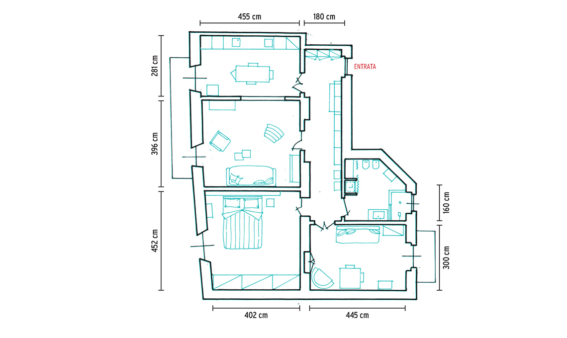
Da più di un anno Vanessa desiderava cambiare casa: il suo bilocale cominciava a starle stretto, specie durante il lockdown quando lavorare da casa era diventato un problema (più che altro di spazio). Qualche mese fa le arriva la proposta di sua madre: invece di comprare un nuovo appartamento, le suggerisce di ristrutturare il suo e di scambiarsi le case...
Perché no? Ho abitato qui con lei per dieci anni e qui ho avuto il mio primo studio, è un po’ un ritorno alle origini. Vanessa
Così tutto è cominciato!. Scegliere materiali, colori e finiture per la sua casa è stato difficilissimo: farlo per gli altri è più semplice! Ma aveva una cosa chiara in testa: la casa è dei primi del ’900 e voleva recuperarne lo spirito originale, dandole allo stesso tempo un’allure parigina e un po’ eclettica, in un mix di pezzi rétro e contemporanei.
Le scelte fatte
Vanessa è partita dal pavimento, l’elemento che da solo dà carattere a tutta la casa e la rende, come dico sempre, ‘fotogenica’. Ha scelto parquet in rovere chiaro posato a spina francese, perfetto con gli elementi d’epoca già presenti (porte, cornici, zoccolini e termosifoni). I colori dovevano essere rilassanti ma cercava anche un modo per far sì che la casa, oltre ad abbracciare e proteggere, la facesse evadere...
Il tocco di stile
La soluzione? Le carte da parati! Vanessa ne ha scelte tre: un paesaggio da sogno, un trompe-l’oeil vedo-non vedo e un rivestimento con il disegno di un quadro. "Sono in casa mia, ma guardandole mi sembra di viaggiare". La casa oggi deve essere proprio così, capace di tenerci qui e al tempo stesso di farci volare lontano con la fantasia...
Rassicuranti tonalità soft e tappezzerie da sogno... Questa volta Vanessa si è cimentata con il restyling della sua nuova casa, facendo convivere dettagli primi '900 e attualissime scelte décor.
Da più di un anno Vanessa desiderava cambiare casa: il suo bilocale cominciava a starle stretto, specie durante il lockdown quando lavorare da casa era diventato un problema (più che altro di spazio). Qualche mese fa le arriva la proposta di sua madre: invece di comprare un nuovo appartamento, le suggerisce di ristrutturare il suo e di scambiarsi le case...
Perché no? Ho abitato qui con lei per dieci anni e qui ho avuto il mio primo studio, è un po’ un ritorno alle origini. Vanessa
Così tutto è cominciato!. Scegliere materiali, colori e finiture per la sua casa è stato difficilissimo: farlo per gli altri è più semplice! Ma aveva una cosa chiara in testa: la casa è dei primi del ’900 e voleva recuperarne lo spirito originale, dandole allo stesso tempo un’allure parigina e un po’ eclettica, in un mix di pezzi rétro e contemporanei.
Le scelte fatte
Vanessa è partita dal pavimento, l’elemento che da solo dà carattere a tutta la casa e la rende, come dico sempre, ‘fotogenica’. Ha scelto parquet in rovere chiaro posato a spina francese, perfetto con gli elementi d’epoca già presenti (porte, cornici, zoccolini e termosifoni). I colori dovevano essere rilassanti ma cercava anche un modo per far sì che la casa, oltre ad abbracciare e proteggere, la facesse evadere...
Il tocco di stile
La soluzione? Le carte da parati! Vanessa ne ha scelte tre: un paesaggio da sogno, un trompe-l’oeil vedo-non vedo e un rivestimento con il disegno di un quadro. "Sono in casa mia, ma guardandole mi sembra di viaggiare". La casa oggi deve essere proprio così, capace di tenerci qui e al tempo stesso di farci volare lontano con la fantasia...